Thiết kế và thi công

Line

Thiết Kế Thi Công Nội Thất Văn Phòng Trọn Gói

Chúng tôi sẽ trợ giúp doanh nghiệp bạn sở hữu được không gian văn phòng phù hợp về công năng sử dụng, hiệu quả về khả năng vận hành.

Nhận tư vấn & báo giá
Thiết Kế Thi Công Nội Thất Văn Phòng Trọn Gói

CHUYÊN GIA HÀNG ĐẦU VỀ THIẾT KẾ THI CÔNG VĂN PHÒNG TẠI HÀ NỘI

1b4b1bf2639fdbc1828e42
Kinh nghiệm với đa dạng loại diện tích

Kinh nghiệm với đa dạng loại diện tích

Chúng tôi cung cấp nhiều sự lựa chọn cho các phương án thiết kế & thi công với đa dạng loại diện tích từ 100m2 - 200m2 - 500m2 - ..., cũng như mức ngân sách đầu tư.

Thiết kế sáng tạo dựa trên yếu tố thực tiễn

Thiết kế sáng tạo dựa trên yếu tố thực tiễn

Sáng tạo trong thiết kế cần được dựa trên những dữ liệu chính xác, trong đó quan trọng nhất chính là đáp ứng hài hoà được mong muốn của khách hàng và hiện trạng mặt bằng thuê.

Nắm rõ đặc điểm & điều kiện thi công từng tòa nhà

Nắm rõ đặc điểm & điều kiện thi công từng tòa nhà

Với hệ thống cơ sở dữ liệu của hơn 2000 toà nhà văn phòng hạng A-B-C, chúng tôi thấu hiệu rõ từng đặc điểm cũng như điều kiện của từng toà nhà, qua đó đưa ra những tư vấn chính xác nhất.

Chất lượng sản phẩm song hành cùng tiến độ

Chất lượng sản phẩm song hành cùng tiến độ

Với hệ thống đối tác và kinh nghiệm của mình, chúng tôi luôn đồng hành để đem lại các sản phẩm, giải pháp về không gian tối ưu nhất cho khách hàng.

Quy trình Thiết kế văn phòng & Lợi ích

1

Tiếp nhận yêu cầu

Ghi nhận yêu cầu của khách hàng, tư vấn sơ bộ về phong cách thiết kế về nhu cầu, công năng sử dụng.

️Bạn có được định hướng thiết kế văn phòng phù hợp giữa khả năng tài chính & nhu cầu sử dụng của doanh nghiệp.

2

Khảo sát thực tế

Tiến hành đo đạc, tính toán tổng diện tích thiết kế trong văn phòng, cũng như phân tích các hiện trạng tại dự án.

Bạn nhận được các đánh giá ưu & nhược điểm của mặt bằng, từ đó đưa ra phương án bố trí công năng phù hợp.

3

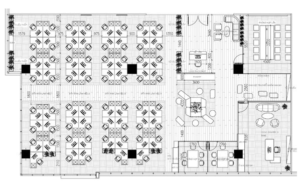
Bản vẽ 2D

Bố trí mặt bằng layout, phân chia không gian văn phòng đáp ứng các nhu cầu công năng sử dụng từ chủ đầu tư.

Bạn có được hình dung cụ thể nhất về bố trí không gian văn phòng làm việc của mình.

4

Lên 3D concept

Xây dưng phương án 3D diễn họa chi tiết phối cảnh không gian thiết kế văn phòng theo định hướng có sẵn.

Bạn nhận được đầy đủ thông tin về hình ảnh không gian văn phòng sắp được hiện thực hóa trong tương lai.

5

Triển khai thi công

Hoàn thiện bộ hồ sơ thiết kế theo yêu cầu từ các bạn để chuyển qua giai đoạn tiến hành thi công tại dự án.

Bạn có đầy đủ dự chi tiết cho các hạng mục thi công, vật liệu sử dụng, và thời gian dự kiến hoàn thành.

Đánh giá & Phân tích

Đánh giá & Phân tích

Tư vấn Ưu nhược điểm của hiện trạng mặt bằng thi công (diện tích, trần, tường, sàn, điện, điều hoà, pccc,...).

Diễn hoạ phối cảnh 3D

Diễn hoạ phối cảnh 3D

Thể hiện chi tiết, tỉ mỉ không gian văn phòng làm việc của khách hàng từ màu sắc đến hình dáng nội thất. Đề xuất vật liệu, đồ nội thất và thiết bị sử dụng.

Bố trí công năng

Bố trí công năng

Cung cấp phương án bản vẽ dựa theo những trao đổi nhu cầu tới từ khách hàng. Đáp ứng yêu cầu về khả năng vận hành hiệu quả và tối ưu nhất.

Liên hệ tư vấn ngay

Line